9月26日,北京卫视《暖暖的新家》
第七季第七期已华丽呈现啦!
本期收视率当季排名第一哦!!!
这期改造的老房子
来自姑苏区24m²的筒子楼
卧室面积狭窄阴暗潮湿
由于没有窗户,拉上窗帘,整个卧室就变成了一个没有任何通风和采光的密闭空间
厨房油烟污染卧室寝具,厨房缺乏储物空间,厨房操作台面太窄无法满足使用。
电路老化电压不稳
灶台距离床铺只有50公分,床品和窗帘又属于易燃物。为了避免明火引燃床铺,夫妻俩炒菜只能用电磁炉。然而,虽然避免了火灾,用电问题却又成了隐患。
厨房油烟无法排出
由于灶台的上方是窗户无法承重,因此并没有安装油烟机,平时炒菜只能打开门窗排烟。
卫生间面积严重浪费
整个卫生间面积3平米,比夫妻俩的卧室还要大。然而这宝贵的3平米却没有得到合理的利用,整个空间堆满了杂物显得拥挤而杂乱。
客厅和卧室功能混乱
客厅是这个家里面积最大的房间,这个13平米的空间内,承载了客厅、餐厅、卧室和厨房的部分功能。只要家里来了客人,就相当于进入了浩凡的卧室,完全没有任何的私密性。阳台位于房间的南侧,面积2平米,同样堆满了各种杂物。
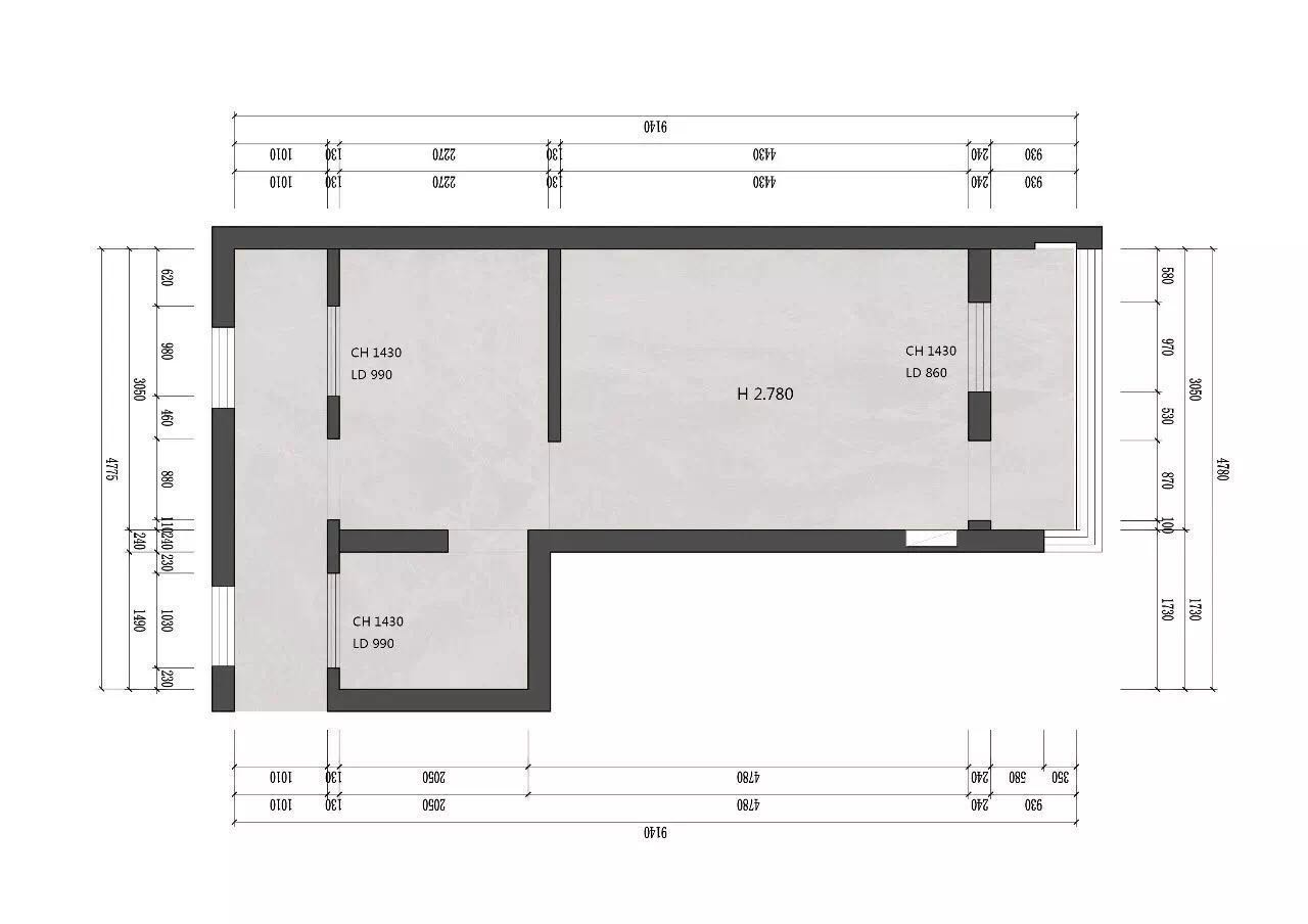
▲改造前结构
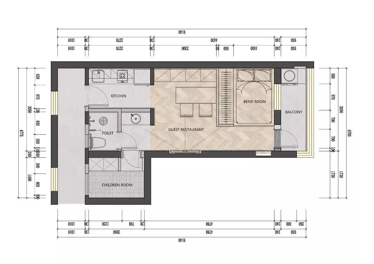
▲改造后布局
原来入户门的对面是楼道的墙体。如今设计师将入户门向东平移了一米,正对着楼道的窗户,采光通风都得到了改善。设计师采用了苏州园林借景的构图手法。在视力所及之处,将室外的景色全部纳入到了视线范围之内。今后在厨房可以一边烹饪美食,一边享受室外的美景。
推开房门,迎接主人的是一个宽敞明亮的新家。设计师重新规划了空间,让这个24平米的房子变成了两室一厅,可以容纳四口人居住的高品质新居。从入户门往里依次是厨房、卫生间、次卧、客厅、主卧和阳台。
原来这里既是厨房,又是夫妻俩的卧室。床铺距离灶台只有50公分,枕边就是菜刀,床下就是高压锅。由于炒菜会产生油烟,每次只要做饭,卧室里的人就必须离开,非常不便。如今,设计师把卧室挪走,还原了厨房本身的功能。





第八季招募啦!!
关注吴江一野设计微信公众号,回复“暖暖的新家”获取报名方式
24平米住在厨房的家,变身两室一厅重建亲情的四口之家!感谢大家的支持!!!
安博平台创立于2006年,是一家专门从事室内环境设计公司。几年来,凭借一批高水准的设计师,以良好的服务独特的经营理念,在苏州及周边地区,乃至全国室内设计行业中赢得了很高的知名度和美誉度。
“一野设计”是专业从事室内设计,商业办公空间设计综合性设计机构,其LOGO的设计“一野”是英文单词“YEAH”的音译,传达了年轻人的设计思想,以及朝气蓬勃的工作动力。
查看更多